S38 - роскошный дом в современном стиле
1215,53 м2
Просчитать

S38

Просторный дом в современном стиле
О проекте
Стадии строительства
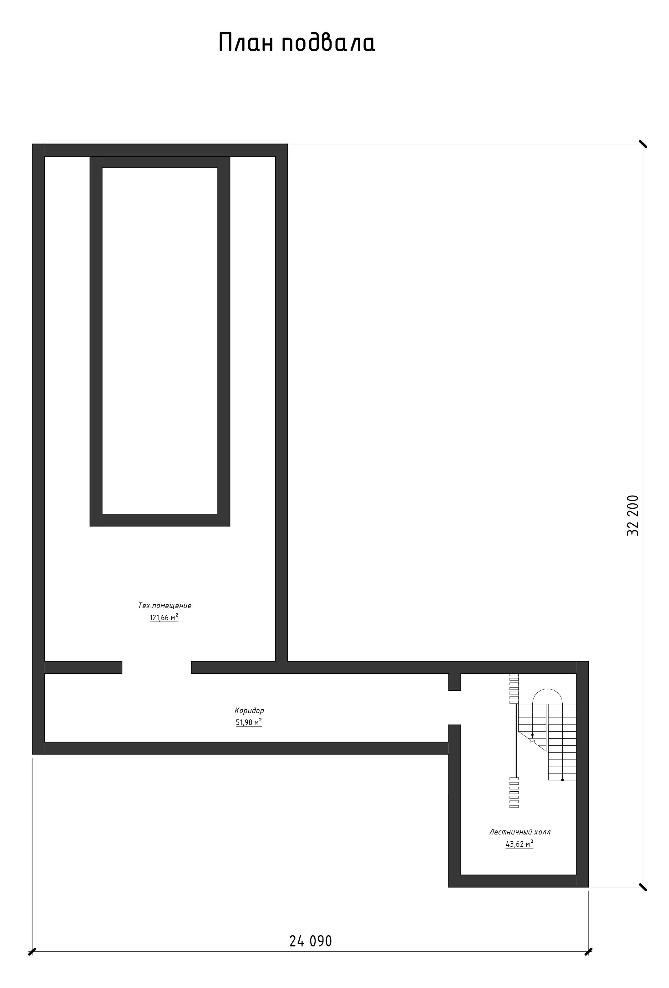
В доме:
  • Навес 
  • Гостиная
  • Кухня-столовая
  • SPA-зона с хамамом
  • Бассейн
  • 5 спальных блоков (спальня, ванная, гардероб)
  • Кабинет
  • Крытые и открытые террасы
Фасады
S38



Тапочки

Останется внести тапочки

Павел Супоницкий
генеральный директор
Просчитать
Просчитать
Основа — «коробка» дома
  • Устройство фундамента
  • Устройство оснований крылец и террас
  • Возведение ограждающих и несущих стен дома, перегородок
  • Монтаж перекрытий и кровли
Под чистовую отделку
  • Утепление стен
  • Утепление перекрытий и фундамента
  • Отделка фасада
  • Установка окон, входных дверей и гаражных ворот
  • Устройство декоративных конструкций
  • Устройство инженерных сетей внутри дома (включая котельное оборудование, вводные и распределительные устройства электропитания)
  • Оштукатуривание стен
  • Устройство черновых полов
Под ключ
  • В этой стадии, дополнительно к предыдущей, мы создаем интерьер вашего дома согласно разработанному дизайн-проекту
Основа — «коробка» дома
Под чистовую отделку
Под ключ